Signed in as:
filler@godaddy.com
Signed in as:
filler@godaddy.com

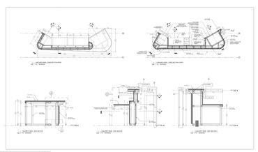
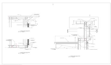
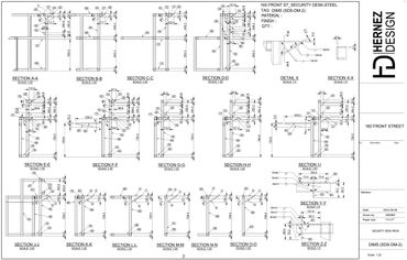
HERNEZ DESIGN HAS AN EXTENSIVE EXPERIENCE IN GLAZING SHOP DRAWINGS CREATION. WE CREATE SHOP DRAWINGS WITH THE MOST ADVANCED BIM TECHNOLOGIES BUT ALSO WITH THE ABILITY TO BE COMPATIBLE WITH THE MOST TRADITIONAL CLIENTS.
OUR GLAZING SHOP DRAWINGS ARE EXTREMELY PRECISE AND DETAILED ENSURING THE BEST QUALITY TO BE DELIVERED.
ITEMS TYPICALLY INCLUDED IN SHOP DRAWINGS:
SERVICE CAN INCLUDE THE QUANTITY TAKE OFF AS ADDITIONAL
FOR A LONG TIME HERNEZ DESIGN HAS BEING WORKING SHOULDER TO SHOULDER WITH ONE OF THE MOST QUALIFIED CUSTOM CARPENTRY IN GTA CREATING SHOP DRAWINGS, MILLWORK 3D MODELS AND FABRICATION DRAWINGS FOR RESIDENTIAL AND COMMERCIAL PROJECTS.
AS A COMMON PRACTICE IN HERNEZ MILLWORK SHOP DRAWINGS ARE CREATED UTILIZING THE MOST ADVANCE BIM TECHNIQUES. BY CREATING 3D MODEL OF EVERY PART INVOLVED IN A DESIGN WE ARE ABLE TO EXPORT ALL PARTS TO ANY TYPE OF CNC MILL WORK MACHINE MINIMIZING THE CHANCE OF HUMAN ERROR AND MAXIMIZING THE EFFICIENCY OF THE PRODUCTION PROCESS.
ITEMS TYPICALLY INCLUDED IN SHOP DRAWINGS:






